Exclusiva casa mediterránea en Sant Andreu de Llavaneres
¡Descubre el hogar de tus sueños en la exclusiva urbanización…
1,050,000€
Venta
1,500,000€














Precioso piso hecho por Interiorista de prestigio en Chamberí, salió en AD.
Presentamos este precioso piso en el barrio de Chamberi, Madrid. La vivienda se encuentra en una primera planta y cuenta con 166,2 construidos.
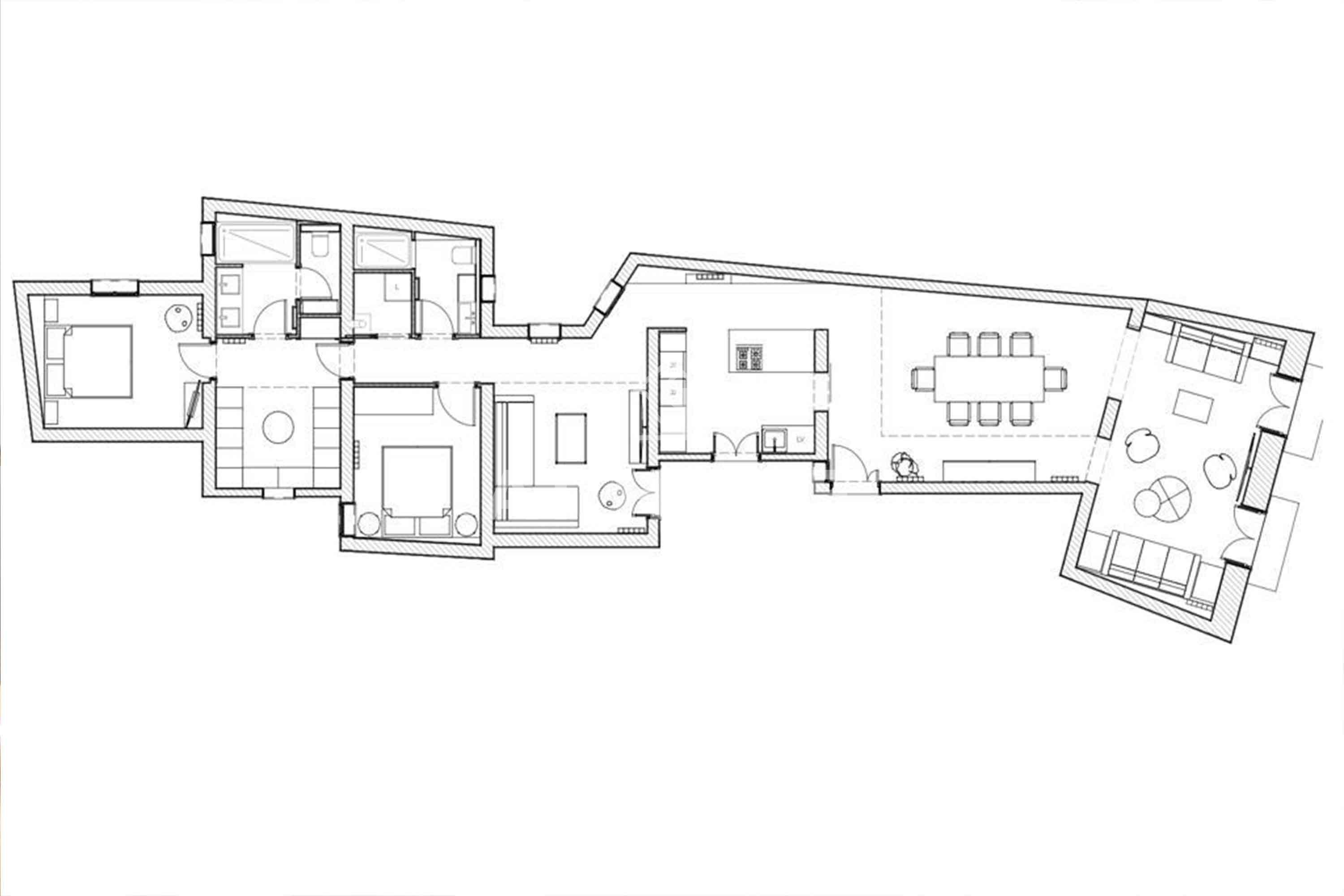
En venta, se encuentra una magnífica primera planta luminosa con una superficie construida de 166m2, de los cuales 160m2 son útiles. Esta propiedad ha sido sometida a una reforma integral de primeras calidades, brindando un resultado excepcional. Dispone de dos habitaciones, dos baños y un cuarto de televisión que podría convertirse en una tercera habitación si se desea. Destaca la habitación principal, la cual cuenta con un amplio vestidor para mayor comodidad. Los techos altos y las ventanas amplias aportan luminosidad y una sensación de amplitud. Además, esta propiedad ofrece calefacción por gas individual y aire acondicionado con función frío y calor, garantizando un confort óptimo durante todo el año. Ubicada en una finca clásica con un encantador ascensor de cabina de madera. Existe la opción de adquirir la propiedad amueblada, aunque este servicio no está incluido en el precio.
CARACTERÍSTICAS
1ra planta luminosa.
166m2 construidos.
160 m2 útiles.
1,500,000 €.
Reforma integral , primeras calidades.
2 habitaciones con 2 baños más cuarto de televisión que podría ser una 3ra habitación.
La habitación principal cuenta con un amplio vestidor.
Techos altos, Ventanas amplias.
Calefacción por gas individual.
Aire acondicionado frío y calor.
Finca clásica.
Ascensor de cabina de madera.
Para obtener más información y coordinar una visita, llámanos al + 34 628934750, escríbenos a info@athomespain.com o completa nuestro formulario de contacto.
¡Descubre el hogar de tus sueños en la exclusiva urbanización…
1,050,000€
Una joya de tres plantas en el corazón vibrante de…
875,000€
Vive con estilo y confort en Anselm Clavé Descubre este…
A consultar
Esta villa en Sant Andreu de Llavaneres es simplemente encantadora.…
2,475,000€
ES